Utilities & More
Utilities
Electricity: Mains SupplyHeating: Gas Central Heating
Sewerage: Mains Supply
-
Make Enquiry
Make Enquiry
Please complete the form below and a member of staff will be in touch shortly.
- Floorplan
- View Brochure
- Utilities & More
Full Details
Keith Ian are pleased to offer this charming CHAIN FREE, three-bedroom bungalow, thoughtfully designed to deliver comfort and style in a single-storey layout. The heart of the home features an open plan living and dining area, enhanced by large windows that flood the space with natural light - ideal for relaxing with family or entertaining guests. The spacious living room boasts ample seating and tasteful décor, creating a welcoming atmosphere throughout.
The modern kitchen is fitted with sleek units complemented by easy-care tiled flooring and also boasts a remote control-powered Velux skylight window, with rain sensor auto-close. The contemporary shower room offers a luxurious walk-in shower, tiled walls, a heated towel rail, a large illuminated wall mirror with touch sensor switch, and practical under-sink storage.
Outside, the bungalow is set back from the road with off-road parking just down the road from the property, framed by mature trees and lush greenery that offer both privacy and a serene welcome. The front garden is neatly maintained, while the rear of the property opens to a fenced garden complete with a spacious patio - ideal for outdoor dining or hosting gatherings. The property includes a gated side alley, ideal as additional storage space for bins and/or bicycles.
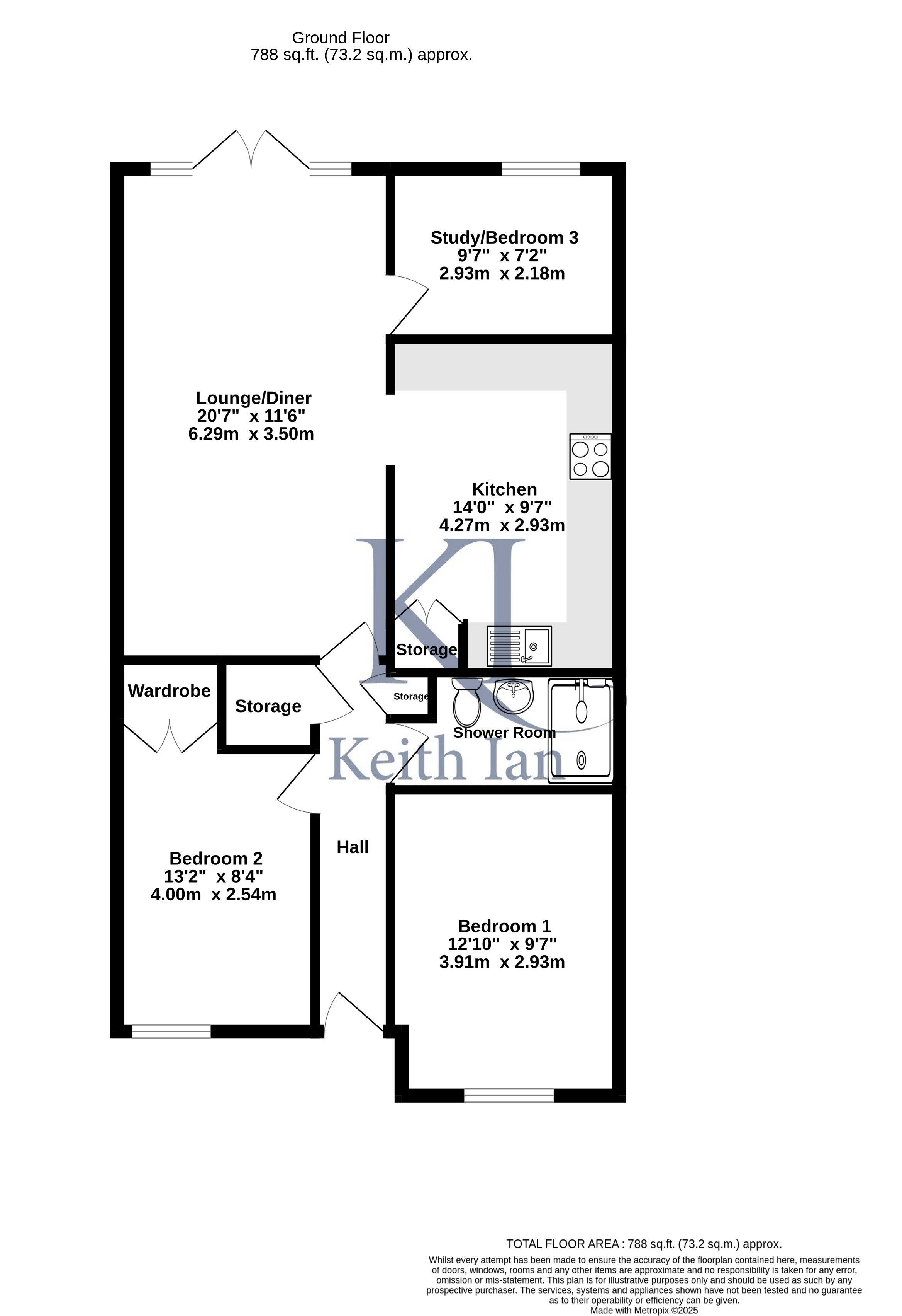
Accommodation Comprises:
Hallway
Lounge / diner 11' 6" x 20' 8" (3.50m x 6.29m)
Kitchen 9' 7" x 14' 0" (2.93m x 4.27m)
Bedroom 1 9' 7" x 12' 10" (2.93m x 3.91m)
Bedroom 2 8' 4" x 13' 1" (2.54m x 4.00m)
Study/Bedroom 3 7' 2" x 9' 7" (2.18m x 2.93m)
Shower Room











